
Adresse: Schubertring 32, 26386 Wilhelmshaven, Deutschland
Nichtraucherunterkunft
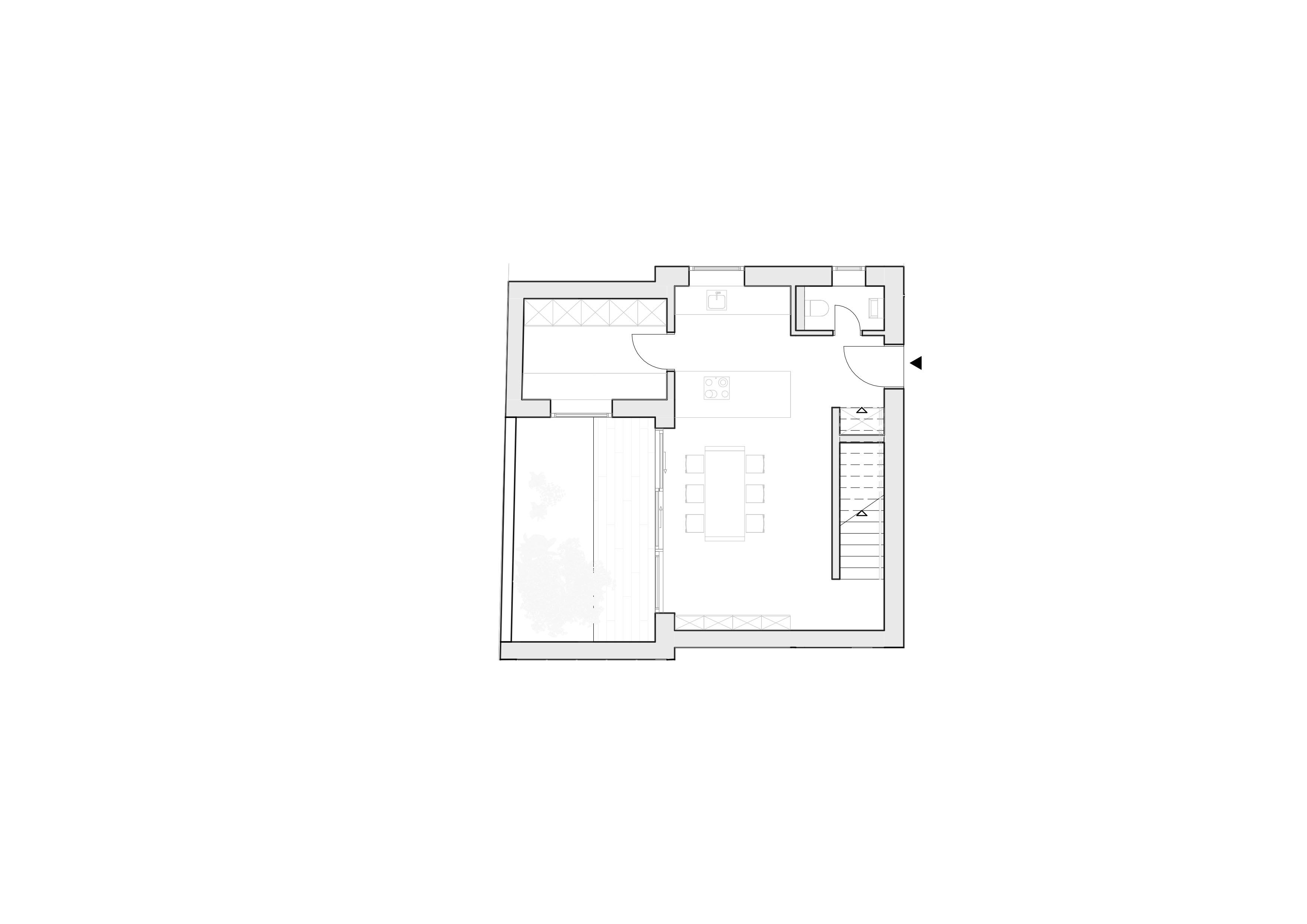
Größe: 80.0 m²
EG: Esszimmer mit offener Küche (voll ausgestattet),
HWR mit Waschmaschine und Waschtrockner,
Gäste-WC,
Terrasse und Garten
OG: Schlafzimmer mit Doppelbett 180 x 200 cm und Zweisitzer, Smart TV
Ankleide mit Nische und Daybed, Balkon,
Bad mit Dusche
Kinderbett auf Anfrage
Preise: ab 150 EUR / Nacht
Endreinigung: 120 EUR

Das Appartement steht Ihnen bevorzugt für Langzeitaufenthalte zu Sonderkonditionen zur Verfügung. Auf Wunsch bieten wir Ihnen während Ihres Aufenthalts einen Concierge-Service an. Kontaktieren Sie uns bitte hier E-MAIL SENDEN oder mobil unter 0171 3761061
| Küche | |
| Kühlschrank | Gefrierschrank |
| Kaffeemaschine | Backofen |
| Wasserkocher | Spülmaschine |
| Wohnbereich | mit großzügigem Esstisch für bis zu 6 Personen |
| HWR mit Waschmaschine |
Trockner |
| Bad mit Dusche | Föhn |
| Handtücher und Bettwäsche | Smart TV |
| Internet | WLAN |
| Kostenloser Parkplatz vor dem Appartement |